筑西市辻

1,298万円

茨城県筑西市

関東鉄道常総線「黒子」駅徒歩3分

関東鉄道常総線「騰波ノ江」駅徒歩36分

関東鉄道常総線「大田郷」駅徒歩58分

価格
1,298万円
間取り/建物面積
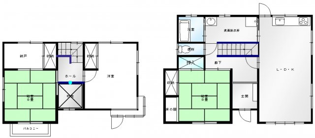
3LDK+S(納戸)/105.11㎡
所在地
茨城県筑西市
築年
1990年8月(築35年)
駐車
有(3台)
交通

関東鉄道常総線黒子」駅 徒歩3分

関東鉄道常総線騰波ノ江」駅 徒歩36分

関東鉄道常総線大田郷」駅 徒歩58分

筑西市辻の基本情報

物件名
筑西市辻
価格
1,298万円
建物面積
105.11㎡
土地面積
67.89坪(224.44㎡)
築年月
1990年8月(築35年)
総戸数
-
所在地
茨城県筑西市
交通

関東鉄道常総線黒子」駅 徒歩3分

関東鉄道常総線騰波ノ江」駅 徒歩36分

関東鉄道常総線大田郷」駅 徒歩58分

筑西市辻の詳細情報

設備条件
  • 閑静な住宅地
  • 駐車3台可
設備(その他)
    -
駐車場/月額
有(3台)/0円 3台駐車可能
土地権利
所有権
国土法届出
不要
用途地域
第一種住居
取引態様
一般媒介
引渡し
即時

筑西市辻で募集中の物件

  1. 会員限定

    会員限定 (会員限定)

    会員限定(会員限定/坪)

  2. 31.79坪 (105.11㎡)

    1,298万円(40.83万円/坪)

周辺施設

  • スーパー塚田の画像

    スーパー

    スーパー塚田

    442m(6分)

  • 黒子郵便局の画像

    郵便局

    黒子郵便局

    574m(8分)

  • ツルハドラッグ 黒子店の画像

    ドラッグストア

    ツルハドラッグ 黒子店

    946m(12分)

  • 関城東小学校の画像

    小学校

    関城東小学校

    1261m(16分)

  • 大圃病院の画像

    総合病院

    大圃病院

    1285m(17分)

  • セブンイレブン 筑西梶内店の画像

    コンビニエンスストア

    セブンイレブン 筑西梶内店

    1450m(19分)

  • 関城中学校の画像

    中学校

    関城中学校

    2874m(36分)

  • 農家の店しんしん関城店の画像

    ホームセンター

    農家の店しんしん関城店

    2927m(37分)

  • 認定こども園西方いずみ幼稚園の画像

    幼稚園

    認定こども園西方いずみ幼稚園

    3171m(40分)

  • 筑西市関城支所の画像

    市役所・区役所

    筑西市関城支所

    4300m(54分)

  • JA北つくば下館南支店の画像

    銀行

    JA北つくば下館南支店

    4548m(57分)

近隣の物件

  1. 筑西市甲

    9SDK (419.56㎡)

    1,890万円

  2. 筑西市樋口

    1R (187.54㎡)

    1,280万円

  3. 筑西市下岡崎2丁目

    5LDK (157.33㎡)

    2,699万円

  4. 筑西市八丁台

    2LDK (67.90㎡)

    2,860万円

よく見られている物件

  1. 筑西市甲

    9DK+2S(納戸) (419.56㎡)

    1,890万円

  2. 古河市西町

    4LDK (98.32㎡)

    498万円

  3. 筑西市樋口

    1R (187.54㎡)

    1,280万円

  4. 結城市中央町2丁目

    3DK (78.66㎡)

    1,500万円

筑西市辻

お気軽にお問い合わせください

無料お問い合わせ

株式会社日進ホーム 玉戸モール支店

0296-45-8321

9:00~19:00

(休:水曜日)